Welcome to Alliance Bazaar - Wernerville
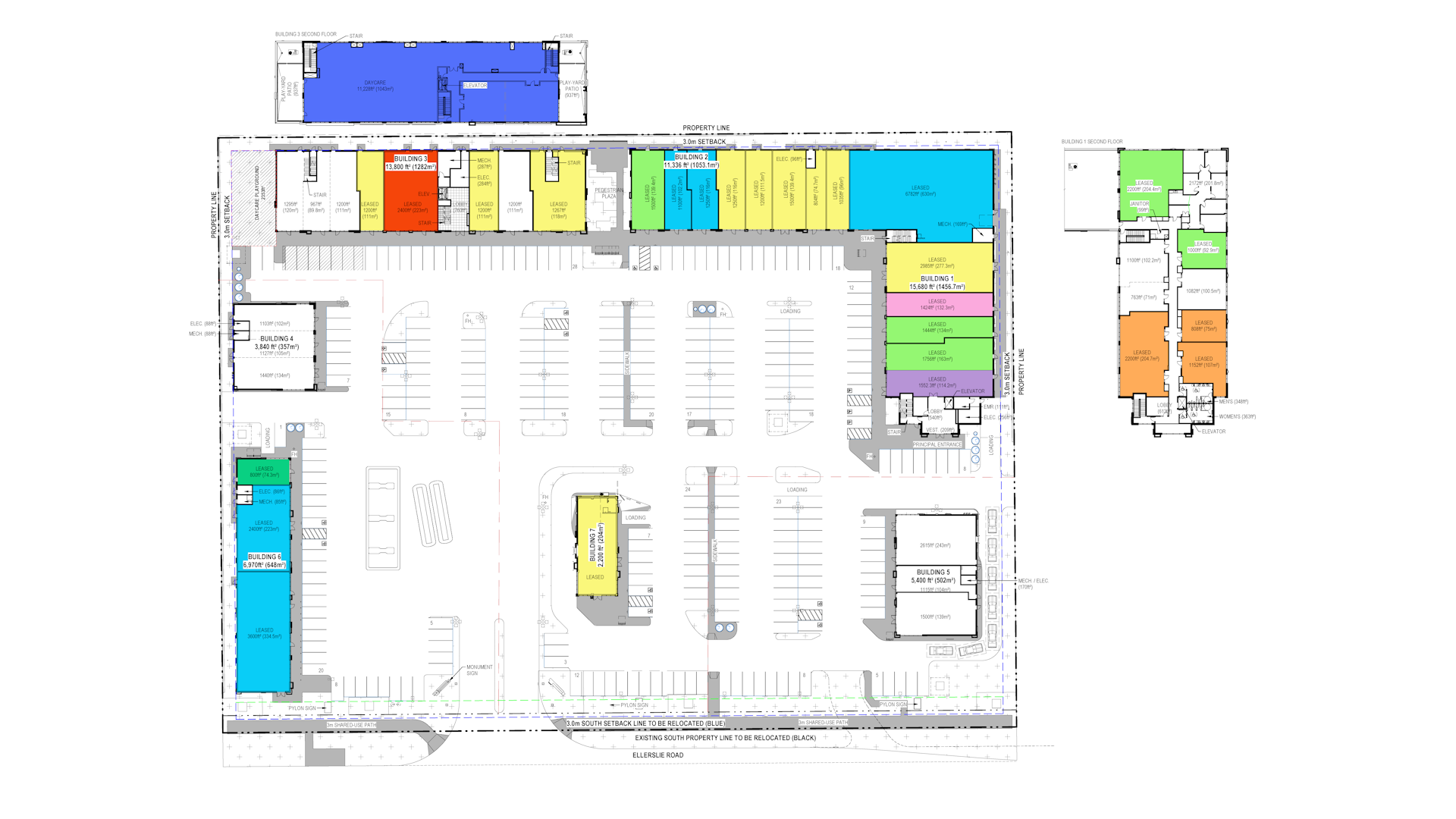
Alliance Bazaar - Wernerville aims to create a dynamic atmosphere through its ethnic grocery, retail and medical services, and its signature banquet hall. The site is situated north of Ellerslie Road adjacent to 66 Street, where retailers will benefit from the visibility of Ellerslie Road and the banquet hall within the complex.
Alliance Bazaar - Wernerville provides convenient vehicle and pedestrian access, being within walking distance of the highly desirable neighborhoods of Summerside, Ellerslie, and Walker Lakes. Alliance Bazaar is expected to be ready for tenant fixturing by 2022, with multiple units available.
COMMUNITY
Alliance Bazaar - Wernerville is adjacent to the Ellerslie and Charlesworth neighbourhoods, transitioning from the existing country residential to the mix of residential, open spaces, and commercial development around it. Key Community Features are:
-
Minutes away from Anthony Henday Drive and Calgary Trail
-
Site access from Ellerslie Road
-
Strategically located north of Ellerslie Road
Join our quality tenants!
- Grocery Store
- Headmasters
- Red Swan Pizza
- Banquet Hall
- Offices
- Drive Thru
- Daycare
- Restaurant
- Dental Clinic
- Pharmacy & Medicentre
- Physiotherapy
- Gas Station
Contact us for more information
Alliance Bazaar - Wernerville
6830 Ellerslie Rd SW, Edmonton, AB T6X 1A3
A quality commercial development Alliance MJ Developments
Alliance Bazaar - Wernerville aims to create a dynamic atmosphere through its ethnic grocery, retail and medical services, and its signature banquet hall.
Phone
(780) 433-1140
